Springboard Design - Profile









Make Your Mark



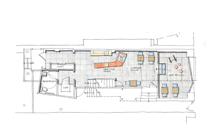
Make Your Mark was an adaptive reuse of an existing 19th century structure that required significant structural repair and aesthetic improvements. The design approach was driven by the concept of mark-making: our materially distinct interventions mark the existing building fabric, establishing both continuity within the existing street facade and a singularity accentuating the unique activities that occur inside.

A former beauty parlor and interiors showroom, the building had a massive chimney running through the center that interfered with circulation, views, and natural light. Our first recommendation was to remove this intrusive element, which allowed for the creation of the centralized counter.

The two-story design also incorporates a multitude of materials and assemblies, including masonry restoration, a cantilevered steel entry porch, multiple industrial metal siding profiles contrasting existing and new construction, galvanized metal awnings and interior finishes, micro-laminated plywood casework with spray lacquer finish, and folded birch plywood bulkheads. A ribbon-like aluminum sign – laser cut with the coffee shop’s name – leads customers from the street down to the shop’s side entrance. A bright, blue metal building addition is the focal point of a redesigned, brick-walled garden oasis in the rear.

︎︎︎© Springboard Design 2023